225 Broadway - Suite 140, San Diego, CA 92101
225 Broadway - Suite 140, San Diego, CA 92101
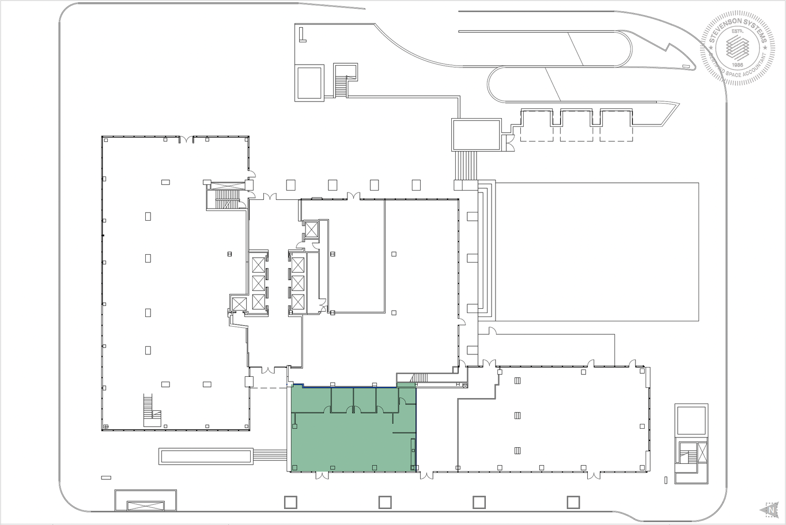
Creative Office | Ground Floor | Breakouts | Kitchen
Unit 140 offers plenty of open-plan office space with high ceilings and abundant natural light—perfect for collaborative teams looking for an inspiring creative environment.
The layout includes one large conference room, one private office, two breakout rooms, a full kitchen, and an in-suite restroom. The space is fully equipped with a printer and copier.
Located in the landmark 225 Broadway building, you're steps from San Diego’s Gaslamp Quarter, public transit, and top amenities. Ideal for tech, design, or professional service firms.
Virtual tour: https://my.matterport.com/show/?m=9oBxRqVJxbo
 The layout includes one large conference room, one private office, two breakout rooms, a full kitchen, and an in-suite restroom. The space is fully equipped with a printer and copier.
Located in the landmark 225 Broadway building, you're steps from San Diego’s Gaslamp Quarter, public transit, and top amenities. Ideal for tech, design, or professional service firms.
Virtual tour: https://my.matterport.com/show/?m=9oBxRqVJxbo
Contact us:
 







