2800 Olympic Blvd
±18,437 RSF Single-Tenant Creative Office
2800 Olympic Blvd
Santa Monica, CA 90404
- Iconic free standing, corner building
- Private patios on the 1st floor AND large rooftop deck opportunity
- Suites have exposed wood ceilings, concrete floors, operable windows
- Prime location connects to the Exposition Bike Path; Bergamot Art Walk; and Light Rail Station
- Secure building with ample on-site, gated parking and direct elevator access to floors
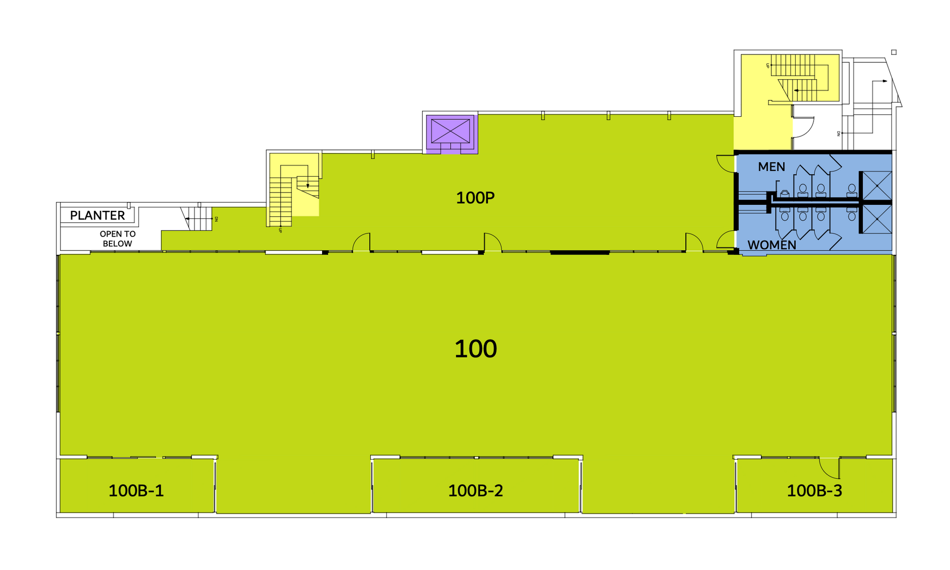
±18,437 RSF TOTAL Space
floor 1:
±9,125 sq ft
floor 2:
±7,506 sq ft
floor 3 Rooftop: ±1,806 sq ft
Inquiries
Contact us to learn more about 2800 Olympic




































