225 Broadway - Suite 1510, San Diego, CA 92101
225 Broadway - Suite 1510, San Diego, CA 92101
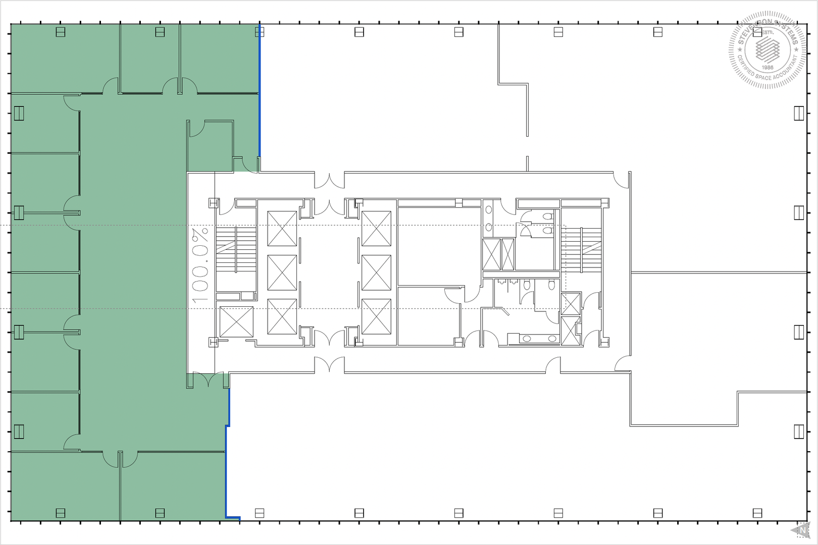
Open Plan Suite | 3 Conference Rooms | Kitchen | Breakouts | Server Room
Unit 1510 is a well-appointed suite featuring a mostly open floor plan designed to support both collaboration and focus—ideal for midsize teams or project-driven operations.
The suite includes three large conference rooms, three breakout rooms, five private offices (exterior facing), a full kitchen, and a server room. The spacious open area offers flexibility for team pods or workstations.
Move-in ready with flexible lease terms.
Virtual tour: https://my.matterport.com/show/?m=dpWzzqpwZWk
 The suite includes three large conference rooms, three breakout rooms, five private offices (exterior facing), a full kitchen, and a server room. The spacious open area offers flexibility for team pods or workstations.
Move-in ready with flexible lease terms.
Virtual tour: https://my.matterport.com/show/?m=dpWzzqpwZWk
Contact us:
 











