225 Broadway - Suite 1200, San Diego, CA 92101
225 Broadway - Suite 1200, San Diego, CA 92101
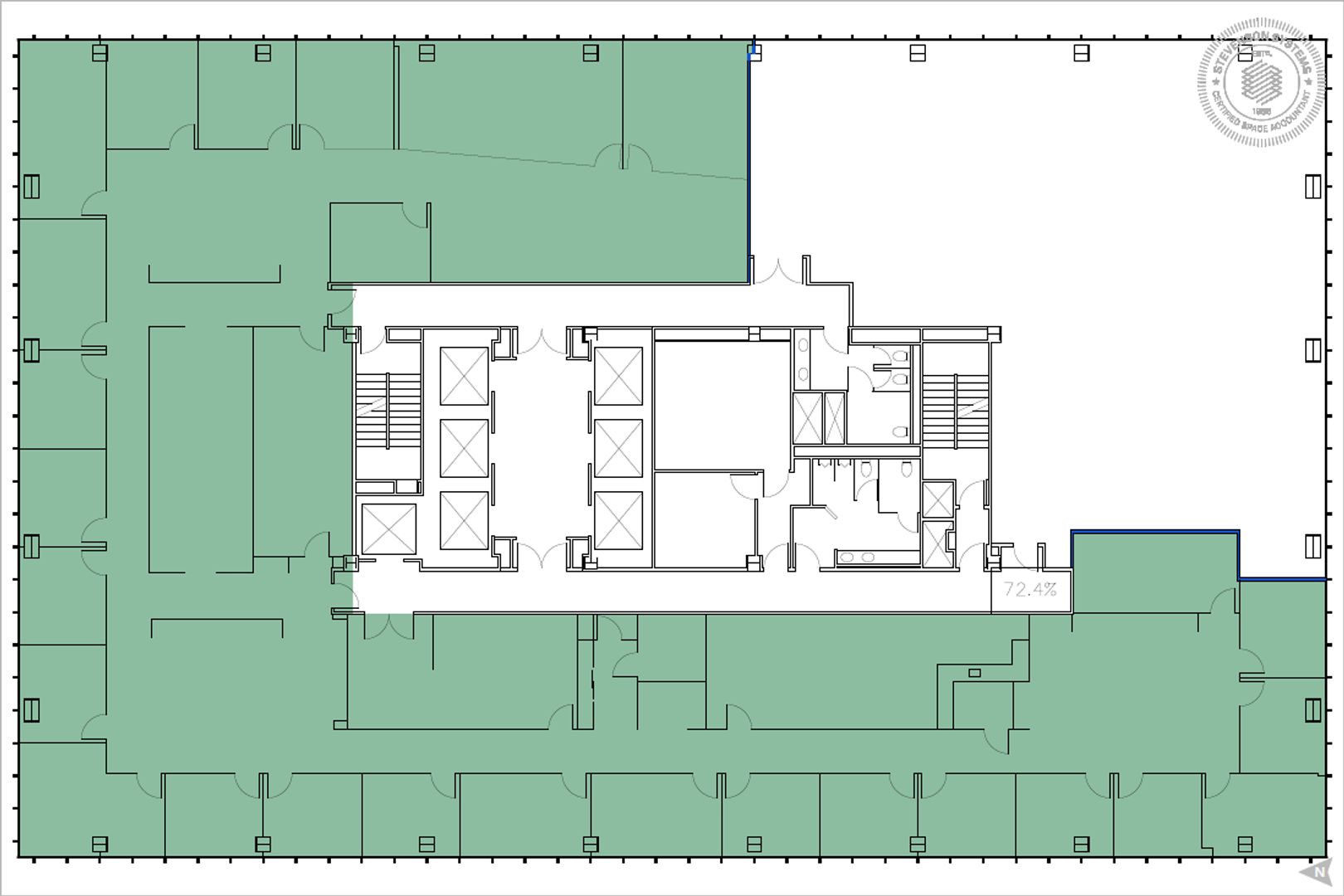
Professional Office Buildout | 23 Offices | 2 Large Conference Rooms
Unit 1200 features a professional office layout with a dense office buildout—ideal for legal, financial, or professional service firms seeking a turnkey downtown presence.
The suite includes 23 private offices (some convertible to breakout areas), two conference rooms, a dedicated server room, and a bullpen in the center of the office. The floorplan maximizes efficiency while maintaining privacy, professional flow, and critically close to San Diego Central Courthouse.
Move-in ready with flexible lease terms.
Virtual tour: https://my.matterport.com/show/?m=KBwmYuVCPmD
 The suite includes 23 private offices (some convertible to breakout areas), two conference rooms, a dedicated server room, and a bullpen in the center of the office. The floorplan maximizes efficiency while maintaining privacy, professional flow, and critically close to San Diego Central Courthouse.
Move-in ready with flexible lease terms.
Virtual tour: https://my.matterport.com/show/?m=KBwmYuVCPmD
Contact us:
 








