225 Broadway - Suite 120, San Diego, CA 92101
225 Broadway - Suite 120, San Diego, CA 92101
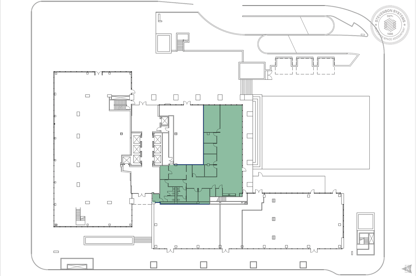
Furnished Open Office | Ground Floor | Breakouts | Kitchen
This fully furnished office suite features a mostly open plan with modern, collaborative design—ideal for teams seeking a plug-and-play downtown space.
The layout includes five private offices, a large conference room, two breakout rooms, one phone room, open-air kitchen, copy room, and in-suite restrooms. The open area supports bench seating or team pods with ample flexibility.
Located in 225 Broadway, in the heart of San Diego, you're within walking distance of the Gaslamp Quarter, transit, and top-tier amenities.
Virtual tour: https://my.matterport.com/show/?m=rN1CY612J6Z
 The layout includes five private offices, a large conference room, two breakout rooms, one phone room, open-air kitchen, copy room, and in-suite restrooms. The open area supports bench seating or team pods with ample flexibility.
Located in 225 Broadway, in the heart of San Diego, you're within walking distance of the Gaslamp Quarter, transit, and top-tier amenities.
Virtual tour: https://my.matterport.com/show/?m=rN1CY612J6Z
Contact us:
 







